Otomatik Fren Kampana Balans Makinesi
VPUBK100-TO
Tesis şu şekilde donatılmıştır:
– Otomatik yükleyici, giriş konveyörü, iyi parçalar için çıkış konveyörü ve hurda parçalar için çıkış konveyörü.
– Frezeleme yoluyla elde edilen statik dengesizlik düzeltmesi.
– Operatörün çalışma alanını maksimum düzeyde görebilmesini sağlamak için uygun pencerelere sahip ses geçirmez kabin.
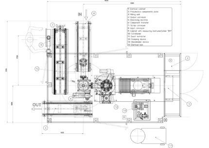
VPUBK30-TO-2ST-1
Dengeleme sistemi şunlarla donatılmıştır:
– Parça tanıma sistemiyle donatılmış yükleme konveyörü;
– Dengesizlik ölçüm istasyonu;
– Parça dengesizliğinin düzeltilmesi ve kontrol edilmesi için istasyonlar. Düzeltme, iki kontrollü eksene sahip bir freze makinesi tarafından elde edilir;
– İyi ve hurda parçalar için çıkış konveyörü;
– Üç kollu otomatik yükleyici.
VUBK50-UF-AC
Tesis aşağıdakilerle donatılmıştır:
– Parça tanıma istasyonu.
– Otomatik iki kollu yükleyici, giriş/çıkış konveyörleri ve hurda parça oluğu ile donatılmıştır.
– İki kontrollü eksene sahip bir delme ünitesi ile elde edilen statik dengesizlik düzeltmesi.
– Delme derinliği ölçüm cihazı.
– Aşınmış/kırık delme ucunun kontrolü.






